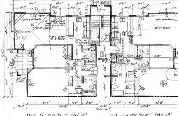
Le Chateau Plan Detail
Example of manual drafting, graphite on vellum, detail of typical plan , manual drafting, Vancouver 1989
|
[close window]
Copyright © Martin Perras